Navigation überspringen
Projekte
Referenzen
Über Uns
Kontakt
Navigation überspringen
Impressum
| English
Beratung
Entwurf
Optimierung
Baueingabe
Bauphysik
Statik/Dynamik
Ausführungsplanung
Stadt + Landschaft
Projekte
>
Metallbauten
>
Brücken und Stege
>
Bahnhofbrücke DB Eberbach 2008
>
Details: Bahnhofbrücke DB Eberbach 2008
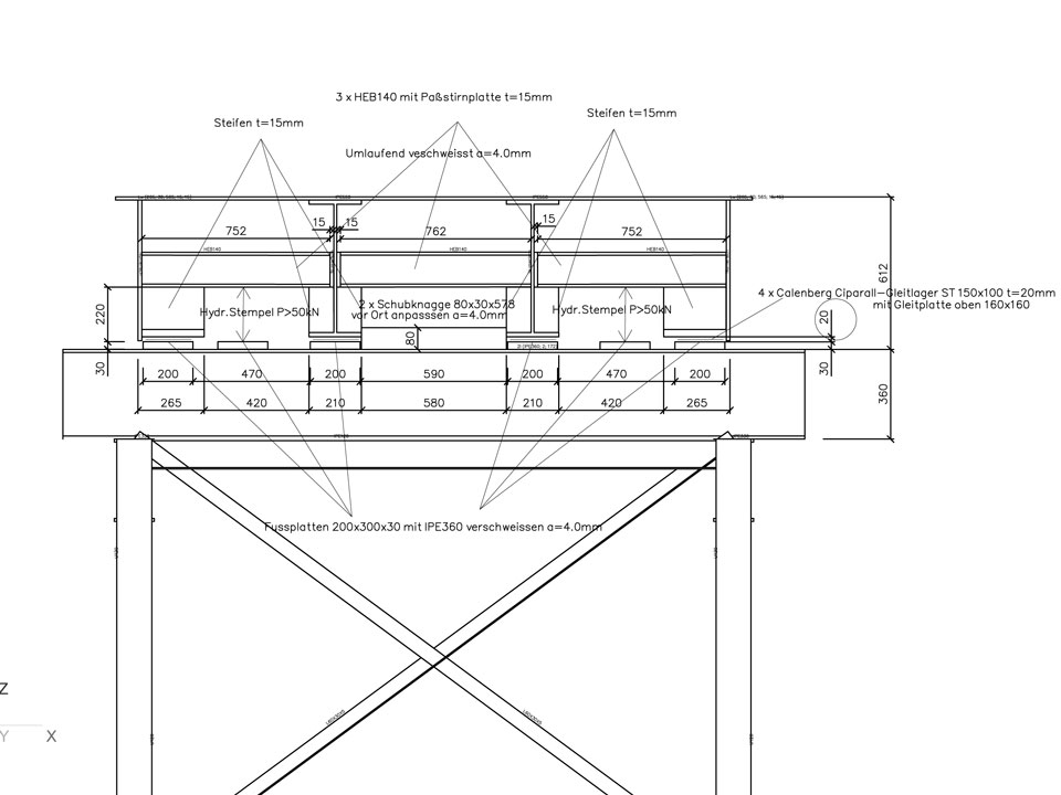
Bitte klicken Sie auf eines der Bilder, um die Galerie zu öffnen.
<<
Zurück