Skip navigation
Projects
References
About Us
Contact
Skip navigation
Legal
| Deutsch
Consultancy
Design
Optimisation
Submission
Building physics
Statics/Dynamics
Execution planning
City + Landscape
Projects
>
Solid structures
>
Bridges
>
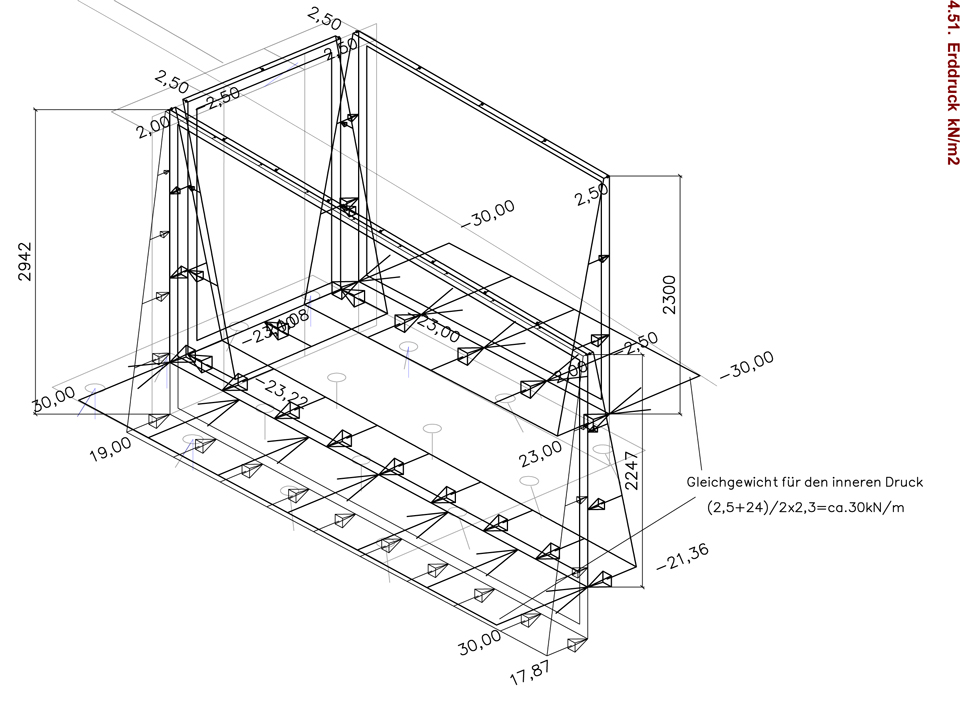
Barrier free connection Mannheim 2011
>
Details: Barrier free connection Mannheim 2011
Please click on one of the pictures to open the full size gallery.
<<
Go back