Skip navigation
Projects
References
About Us
Contact
Skip navigation
Legal
| Deutsch
Consultancy
Design
Optimisation
Submission
Building physics
Statics/Dynamics
Execution planning
Industry + Trade
Projects
>
Complex structures
>
Factory buildings
>
Fuchs Mannheim 2010
>
Details: Fuchs Mannheim 2010
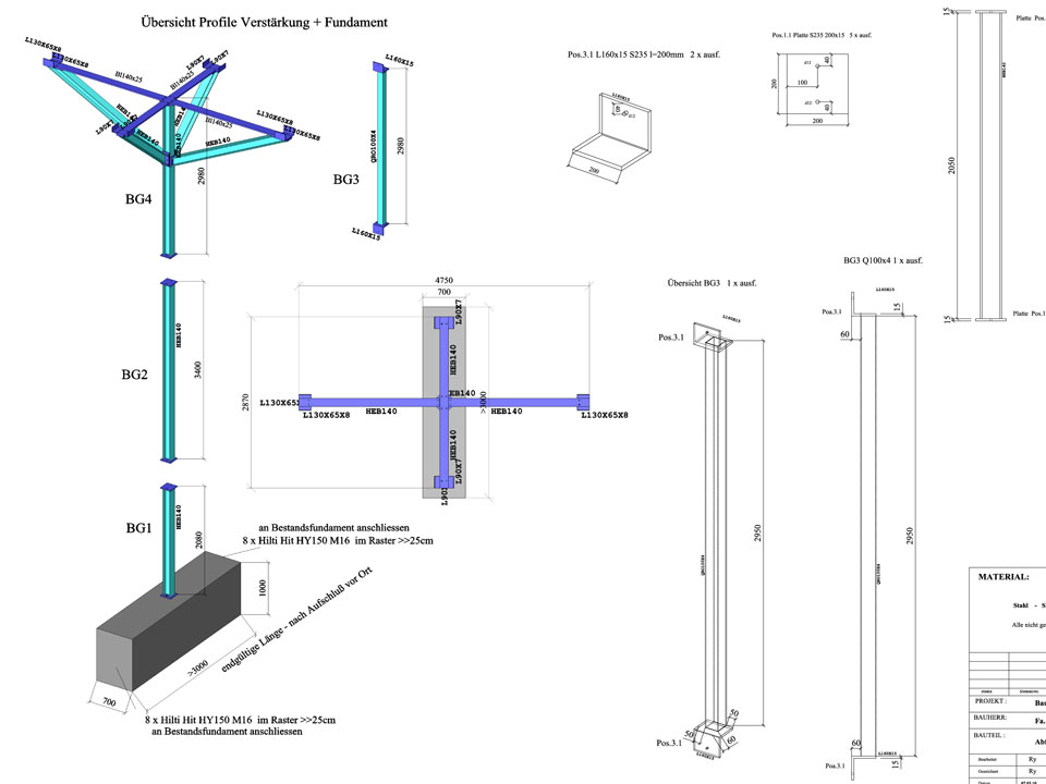
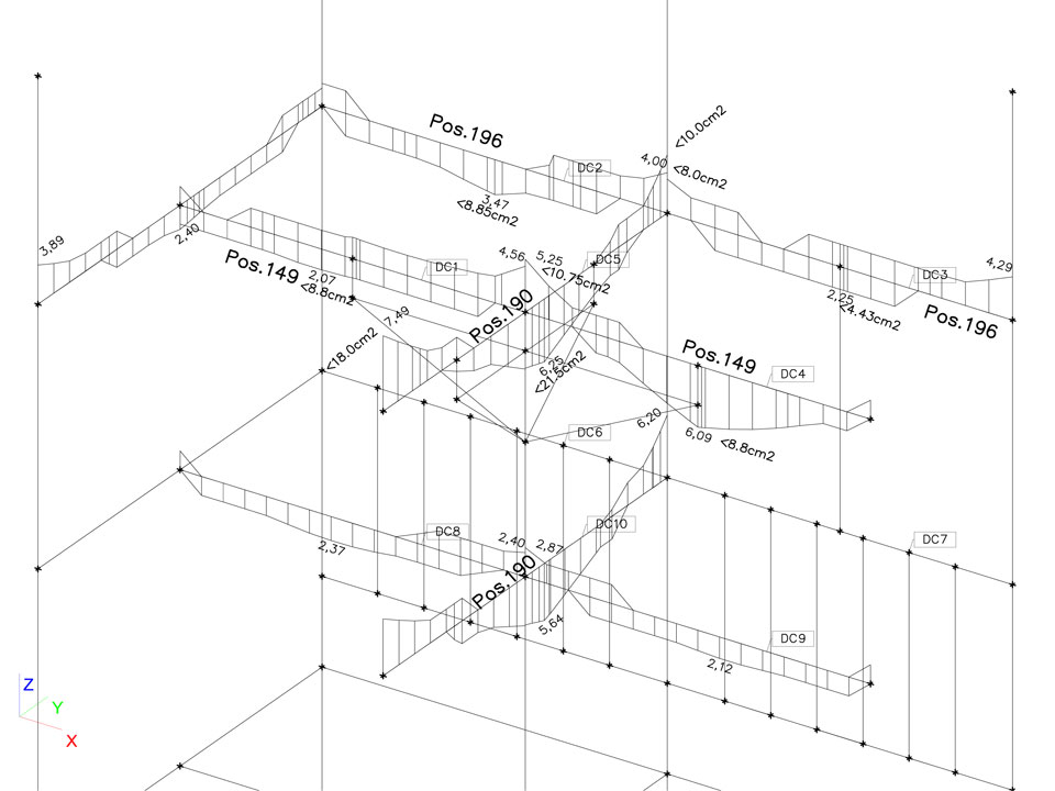
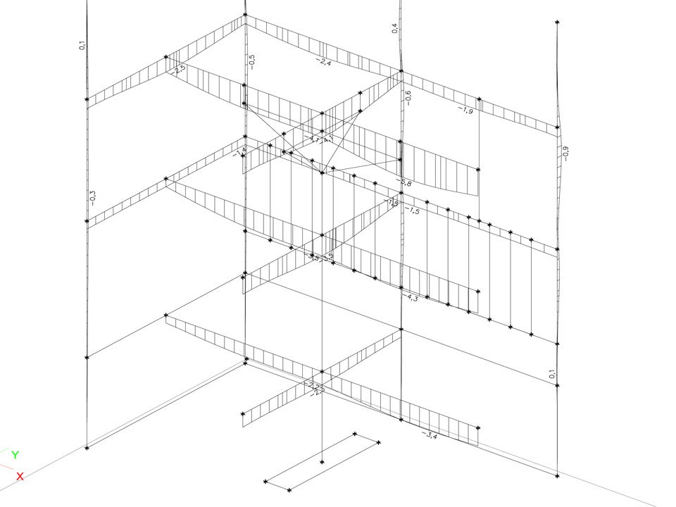
Please click on one of the pictures to open the full size gallery.
<<
Go back