Navigation überspringen
Projekte
Referenzen
Über Uns
Kontakt
Navigation überspringen
Impressum
| English
Beratung
Entwurf
Optimierung
Baueingabe
Bauphysik
Statik/Dynamik
Ausführungsplanung
Kultur + Freizeit
Projekte
>
Metallbauten
>
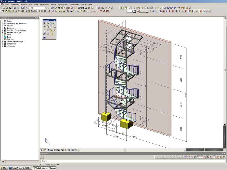
Wendeltreppen
>
Musikschule Sinsheim 2006
>
Details: Musikschule Sinsheim 2006
Bitte klicken Sie auf eines der Bilder, um die Galerie zu öffnen.
<<
Zurück