Navigation überspringen
Projekte
Referenzen
Über Uns
Kontakt
Navigation überspringen
Impressum
| English
Beratung
Entwurf
Optimierung
Baueingabe
Bauphysik
Statik/Dynamik
Ausführungsplanung
Stadt + Landschaft
Projekte
>
Sonderbauten
>
Geländer, Treppen, Zäune
>
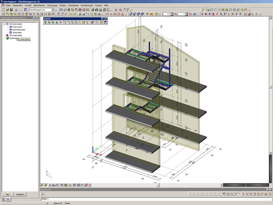
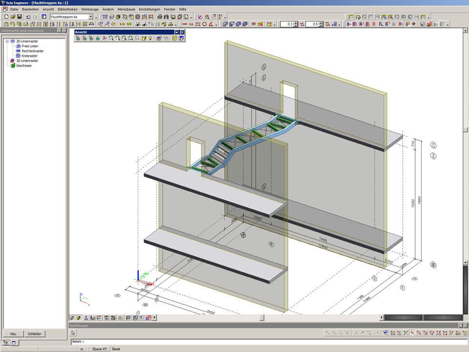
Schule Nußloch Fluchttreppen 2010
>
Details: Schule Nußloch Fluchttreppen 2010
Bitte klicken Sie auf eines der Bilder, um die Galerie zu öffnen.
<<
Zurück