Skip navigation
Projects
References
About Us
Contact
Skip navigation
Legal
| Deutsch
Consultancy
Design
Optimisation
Submission
Building physics
Statics/Dynamics
Execution planning
Culture + Leisure
Projects
>
Textile structures
>
2D membranes
>
Shadow sail Ladenburg 2005
>
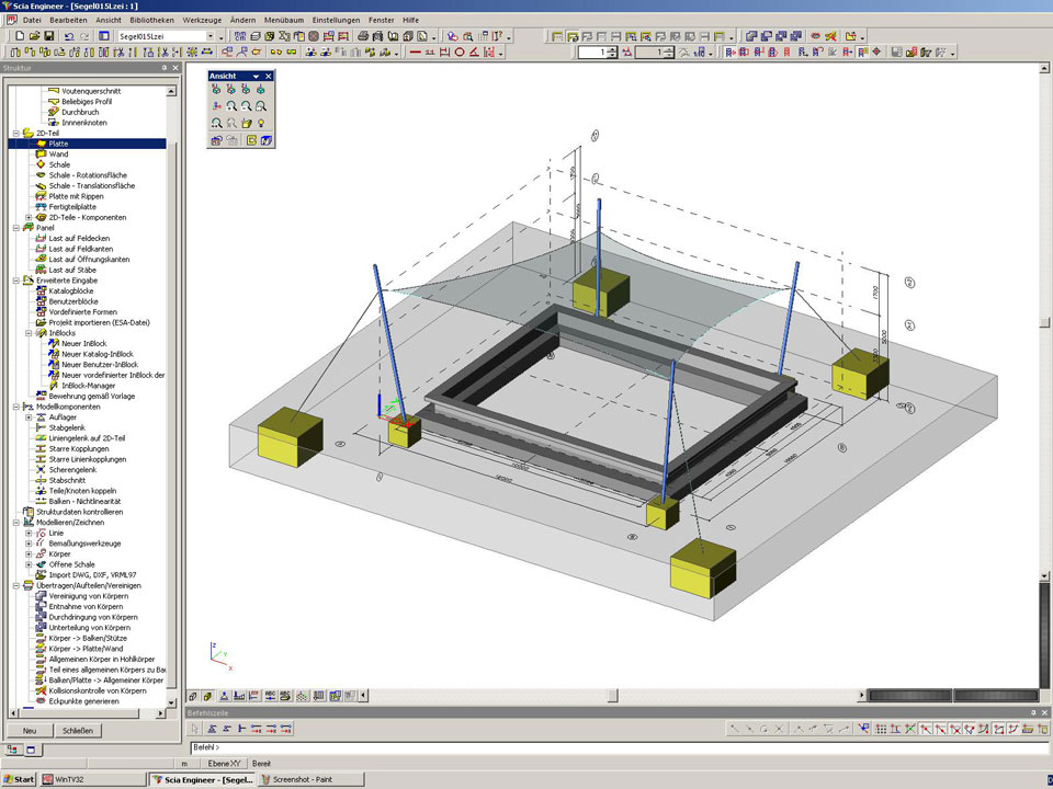
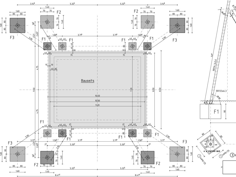
Details: Shadow sail Ladenburg 2005
Please click on one of the pictures to open the full size gallery.
<<
Go back